213 m² İki Katlı Çelik Villa

213 m² İki Katlı Çelik Villa Hakkında

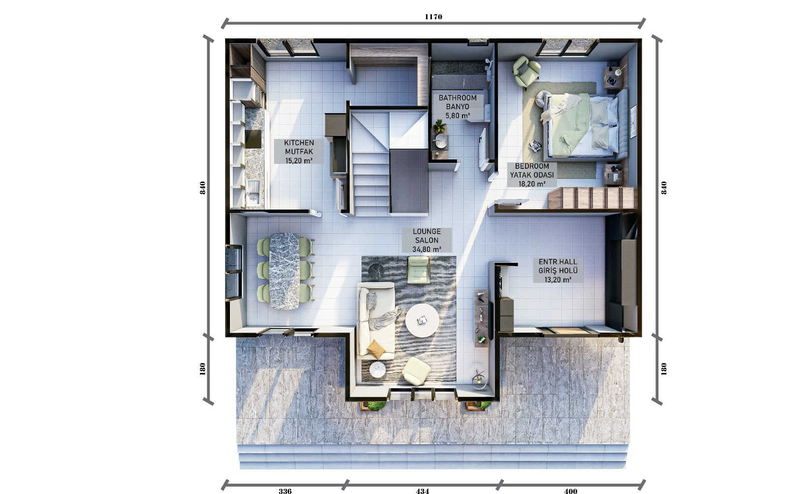
213 m² iki katlı bu çelik villa, 4 yatak odası ve güçlü dış cephe mimarisiyle büyük aileler ve prestijli yaşam arayanlar için tasarlandı.
Heybetli duruşu, modern çizgileri ve geniş iç hacmiyle üst segment bir yaşam alanı sunar.

Proje Detayları

213 m² büyüklüğündeki bu iki katlı çelik villa, ilk bakışta bile kendini belli eden güçlü, sağlam ve prestijli bir mimari duruşa sahiptir. Bu yapı yalnızca geniş bir ev değil; statü ve güven hissi sunan bir yaşam alanıdır.

Alt katta yer alan geniş yaşam alanları, evin sosyal merkezini oluşturur. Salon ve mutfak hacmi, kalabalık aile yaşamını ve misafirli günleri rahatlıkla karşılayacak şekilde tasarlanmıştır. Açık ve dengeli plan yapısı sayesinde mekânlar birbirine akıcı biçimde bağlanır; ev içinde ferahlık ve düzen hissi sürekli korunur.

Üst katta konumlanan 4 yatak odası, aile bireylerinin her biri için ayrı ve konforlu bir özel alan sunar. Odaların ölçüleri ve yerleşimi, evin hiçbir noktasında sıkışıklık hissi oluşturmadan, rahat bir kullanım sağlar. Katlar arası net ayrım sayesinde alt kat sosyal yaşamı, üst kat ise dinlenme alanlarını temsil eder.

Bu villanın en dikkat çekici özelliklerinden biri dış cephe estetiğidir. Güçlü kütle yapısı, modern cephe oranları ve sağlam duruşu sayesinde yapı, uzun yıllar modası geçmeyecek bir mimari kimlik kazanır. Hem şehirli hem de prestijli bir görünüm sunan bu tasarım, arsa üzerinde kendini net biçimde hissettirir.

Çelik yapı sistemi sayesinde bu villa;

• Yüksek deprem güvenliği
• Uzun ömürlü ve sağlam taşıyıcı sistem
• Hızlı üretim ve kontrollü kalite

avantajlarını bir arada sunar.

Bu model; geniş aile yapısına sahip olan, büyük metrekareden vazgeçmeyen, güçlü ve prestijli bir evde yaşamak isteyen kullanıcılar için üst segment, iddialı ve uzun vadeli bir yaşam yatırımıdır.
  • Metrekare: 213 m²
  • Oda Sayısı: 4
  • Banyo Sayısı: 2
  • Tarih: 13.01.2026